Cable Connectors
FireZero Conduit
Prevent fire spread through wall penetration
» Installed in a conduit penetrating the wall
» Easy to install
» Semi-permanent effect with a one-time installation
» Superior quality control and no harmful gas
» Silicone material applied inside clean room
» Material :Silicone
-
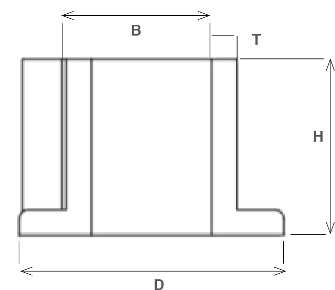
(Unit: mm)Cap Size D B H T 16C 62.6 21.6 50.0 7.2 22C 68.2 27.2 50.0 7.2 28C 75.2 34.2 50.0 7.2